Bespoke Modular Living
Moduflex 8m x 2.4m Bathroom
- CLASS 1A & CLASS 10 APPROVED
- AUSTRALIAN ENGINEERED
- BUILT TO AUSTRALIAN STANDARDS (NCC/BCA)
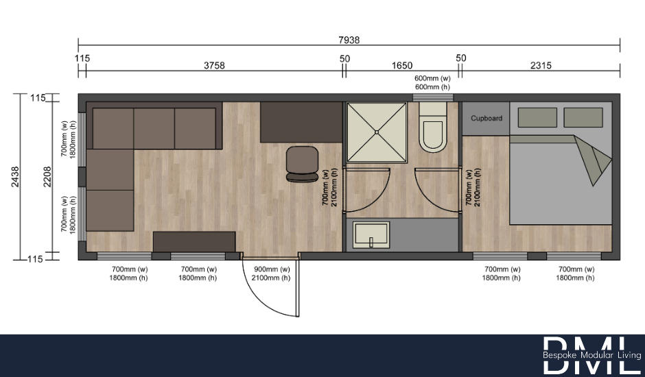
The ModuFlex 8 x 2.4m Bathroom Unit is a complete, self-contained solution designed to provide modern bathroom facilities in a modular format. Spacious yet compact, it offers everything you need in one streamlined unit, making it perfect for residential add-ons, granny flats, or site amenities.
Inside, you’ll find a full bathroom setup, including a toilet, vanity, and shower, all finished to a high standard. With six double-glazed windows (including a smaller window for the bathroom) and a glass front door, the unit feels bright and airy while maintaining excellent insulation. 14 LED downlights ensure crisp, modern lighting, while plumbing and electrical systems are fully pre-installed, requiring only on-site connections to be ready for use.
Built with a solid steel frame, insulated EPS panels, and durable roofing, the ModuFlex 8 x 2.4m Bathroom Unit is designed to last. Delivered fully built and ready to go, it’s a fast and reliable alternative to traditional construction, offering convenience, comfort, and flexibility all in one.
EXTERIOR:
- Durable flat roof steel Frame - galvanized and powder coated grey
- 75mm Insulated EPS wall panels - Interior colour white, Exterior colour grey
- 70mm Insulated EPS roof panels - Interior colour white, Exterior colour grey
WINDOWS & DOORS
- 1 x 900mm wide x 2100mm high aluminum double glazed glass door
- 6 x 700mm wide x 1800mm high aluminum double glazed awning windows
- 1 x 600mm wide x 600mm high aluminum double glazed awning window
INTERNAL:
- Internal ceiling height of 2500mm
- Internal walls 50mm EPS Panels colour white
- Flooring - PVC floorboards colour grey
- White PVC trim from ceiling, walls and corners
- PVC white skirting
- 1 x 700mm wide x 2100mm aluminum frosted tempered glass door
BATHROOM:
- 900mm wide by 900mm wide acrylic shower base
- Black trimmed shower screen
- Matt black shower head and mixer
- Light grey laminate vanity with white laminate benchtops
- Ceramic oval white basin
- Matt black tapware for basin
- Toilet suite
- Wall mounted oval mirror above vanity
ELECTRICAL:
- 10x LED Downlights
- 8x Double GPOs
PLUMBING:
- Hot and Cold water supply lines
UPGRADES:
- Additional exterior doors & windows
- Additional interior doors
- Change in fixture & fitting colors
- Change laminate benchtop to stone
- Change in cabinetry colour & design
- Change in appliances
- Additional GPOs or downlights
- Additional plumbing points
- Intergrated Plumbing
PURCHASING PROCESS FOR YOUR MODULAR HOME
1. Choose Your Design
Select the modular home model that best suits your needs
2. Customisation
- External Panels: Grey, Black, or White
- Flooring Options: Grey, Brown, or White
- Electrical & Plumbing locations
3. Place Your Order & Secure with Deposit
To begin production, a 60% deposit is required.
- Payment Schedule: 60% deposit on order, and the remaining 40% balance prior to delivery.
4. Production Timeline
Your modular home will be custom-built and ready in approximately 8-12 weeks from the time your deposit is received.
5. Delivery & Installation
Once complete, your unit is delivered fully built and ready to place on-site (or mounted on a trailer if selected). Transportation is additional to the unit price.
why choose US?
At Bespoke Modular Living, we deliver engineered modular building systems designed for strength, speed, and reliability in Australian conditions.








